• Zámočnícka dielňa
  • O nás
  • Spolupráca
  • Kontakt
  • Newsletter
  • Zámočnícka dielňa
0915 829 254
  • Posuvné dvere
  • Pivotové dvere
  • Otočné dvere
  • Deliace steny
  • Výroba na mieru
  • OBĽÚBENÉ DIZAJNY
Search
Menu
Login / Register
Wishlist
0 items 0,00 €
0 items 0,00 €
Click to enlarge
Domovská stránka » OBĽÚBENÉ DIZAJNY » Double English Coal
English Coal
Back to products
Eternal Frame

Double English Coal

Dvojkrídlové posuvné dvere so zasúvaním dverí popri stene. V kontraste so svetlými stenami sú antracitové posuvné dvere s krížovým delením v ráme veľmi elegantné.

✓ presné zameranie priestoru v cene
✓ remeselne vyrábané profily rámu a rastra (nie hliník)
✓ s presnosťou na milimetre
✓ profesionálne ošetrený a leštený povrch
✓ používame talianske a nemecké laky s drvenou sľudou
✓ posuvný systém s ohľadom na frekvenciu otvárania
✓ každý otvor v mriežke zasklievame samostatne
✓ dodávame vrátane kovaní, madla a kotviacich prvkov
✓ vyrábame v Banskej Bystrici
✓ prispôsobíme na mieru (dizajn aj nad štandardné rozmery)

Umiestnite ich zboku na stenu spôsobom, ktorý si sami vyberiete:
možnosti montáže

 

Získať nezáväznú ponuku

Aktuálna doba výroby je 6-10 týždňov.
Pri niektorých modeloch môže trvať aj dlhšie.

Add to wishlist
19 People watching this product now!
Category: RÁMOVÉ DVERE
Share:

VÝHODY

VLASTNÁ ZÁMOČNÍCKA DIELŇA

Ako jeden z mála výrobcov rámové profily vyrábame v našej zámočníckej dielni a lakujeme vo vlastnej lakovni. Máme tak plne pod kontrolou termíny i kvalitu.

RUČNE VYROBENÉ

Za každými dverami nájdete minimálne 7 párov rúk, ktoré im dávajú konečný tvar podľa vášho vkusu. Od návrhu po montáž.

UNIKÁTNY PRIEMYSELNÝ VZOR

Využívame remeselné techniky opracovania a kompletizácie oceľového rámu do vzoru, ktorý sa používal už pred 100 rokmi.

POSUVNÉ NA OBE STRANY

Keď hľadáte štýlové posuvné dvere, English Coal je najlepšia voľba. Zasúvanie je možné na obe strany. Prekryje celý dverný otvor a vďaka preskleniu do miestnosti vpustí ideálne množstvo svetla.

ELEGANTNÝ VZHĽAD

Vďaka variabilnému väčšiemu počtu delení v ráme pôsobia posuvné dvere jemne a elegantne.

VARIABILNÉ RIEŠENIE

Jednokrídlové English Coal sú obľúbeným interiérovým prvkom s vysokou architektonickou hodnotou nielen pre domácnosti, ale aj pre administratívne budovy a kancelárie.

KONFIGURÁCIA

Farebnosť skla

drotosklo-industrialny-styl-faktory
pevna-deliaca-priecka-pracovne-faktory
detail-ramovych-spojov-dveri-faktory
ornamentalne-sklo-industrialnych-dveri-faktory

Farba rámu

img-cierna
img-antracit
img-biela

Dizajn madla a kovaní

okruhle-madlo-industrialnych-dveri-faktory
madlo-posuvnych-ramovych-dveri-faktory

MOŽNOSTI MONTÁŽE

SVOJPOMOCNE

Posuvné dverí ľahko namontujete aj sami. Navrhli sme ich tak, aby ste to pomocou inštalačného návodu zvládli bez toho, aby ste si museli najať profesionála. Stačí vám jedna pomocná sila.

VLASTNÁ PARTIA

Stavebná firma aj domáci majstri, ktorí majú skúsenosti so stavebnými konštrukciami si s montážou hravo poradia. Všetko potrebné bude súčasťou balenia.

MONTÁŽ OD NÁS

Radi nechávate veci na odborníkov. Vyšleme vám podľa dohody našich montážnikov, ktorí vám dvere osadia na miesto podľa vášho želania.
  • Description
  • Reviews (0)
  • O Faktory
Description

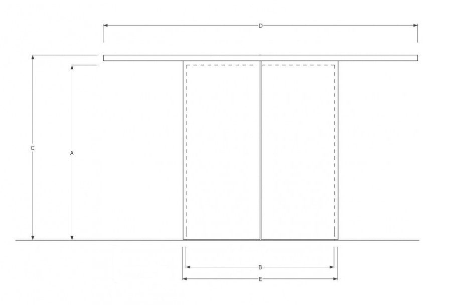
TECHNICKÉ INFORMÁCIE

použitie interiérové dvere
počet krídel
dvojkrídlové dvere
sklo vrstvené sklo
hrúbka skla 6 mm
ideálna výška dverného otvoru „A“ 4000 – 4600 mm (podľa špecifikácie)
ideálna šírka dverného otvoru „B“ 1200 – 1800 mm (podľa špecifikácie)
celková výška dverí „C“ 2100 – 2400 mm (podľa špecifikácie)
celková šírka dverí „D“ 1600 – 1900 mm (podľa špecifikácie)
šírka dverných krídel „E“ 1320 – 1920 mm (podľa špecifikácie)
orientácia dverí ľavé/pravé (podľa špecifikácie)
rám, vodiaci profil, kovania v jednotnej farbe (podľa špecifikácie)
madlo súčasťou rámu
materiál steny betón, tehla, drevo, sádrokartón s výdrevou
Reviews (0)

Reviews

There are no reviews yet.

Be the first to review “Double English Coal” Zrušiť odpoveď

Vaša e-mailová adresa nebude zverejnená. Vyžadované polia sú označené *

O Faktory

Predtým než sa pustíme do výroby industriálnych dverí, snívame o ich kráse. Poctivá remeselná zručnosť je pre nás kľúčom k vašej spokojnosti.
Veríme, že industriálny dizajn predstavuje spôsob, ako uniknúť uniformite a priblížiť sa unikátnosti.
Od obdobia industrializácie zostáva nadčasovým a dedí sa z generácie na generáciu, rovnako ako naše remeslo.

Každý diel má svoje miesto

Tajomstvo úspechu našich výrobkov je v starostlivom prístupe k detailom.
Budeme radi, keď budú aj vašou súčasťou.

Big Bertha

INTERIÉROVÉ PRIEČKY, RÁMOVÉ DVERE
Read more
Quick view
Add to wishlist

Coal Beret

INTERIÉROVÉ PRIEČKY, RÁMOVÉ DVERE
Read more
Quick view
Add to wishlist

Double English Coal

RÁMOVÉ DVERE
Read more
Quick view
Add to wishlist

You may also like…

Hot
Read more
Quick view
Add to wishlist

Industrial Harmony

INTERIÉROVÉ PRIEČKY, RÁMOVÉ DVERE
Read more
Quick view
Add to wishlist

Big Bertha

INTERIÉROVÉ PRIEČKY, RÁMOVÉ DVERE
Hot
Read more
Quick view
Add to wishlist

English Coal

RÁMOVÉ DVERE
Read more
Quick view
Add to wishlist

Pivot Swing

INTERIÉROVÉ PRIEČKY, RÁMOVÉ DVERE
Read more
Quick view
Add to wishlist

Timeless Slide

INTERIÉROVÉ PRIEČKY, RÁMOVÉ DVERE

Related products

Hot
Read more
Quick view
Add to wishlist

Double Slate

RÁMOVÉ DVERE
Read more
Quick view
Add to wishlist

Coal Beret

INTERIÉROVÉ PRIEČKY, RÁMOVÉ DVERE
Read more
Quick view
Add to wishlist

Solo Perfection

RÁMOVÉ DVERE
Read more
Quick view
Add to wishlist

Pivot Encase

INTERIÉROVÉ PRIEČKY, RÁMOVÉ DVERE
Read more
Quick view
Add to wishlist

Eleanor

INTERIÉROVÉ PRIEČKY, RÁMOVÉ DVERE
Read more
Quick view
Add to wishlist

Glide

RÁMOVÉ DVERE
Read more
Quick view
Add to wishlist

Golias

INTERIÉROVÉ PRIEČKY, RÁMOVÉ DVERE
logo-footer-faktory

Vážime si poctivé remeslo. Kovovýrobu sme vzali do vlastných rúk. Od roku 2019 v nových, väčších priestoroch.
Otvorte dvere novým možnostiam a vpustite k sebe vzrušujúci industriálny štýl. Priamo od slovenského výrobcu.

  • gps Zvolenská cesta 85, 974 05 Banská Bystrica
  • Tel: 0915 829 254
  • E-mail: faktory@faktory.sk
Z DIELNE
  • Posuvné dvere
  • Otočné dvere
  • Pivotové dvere
  • Deliace steny
  • Obľúbené dizajny
FAKTORY
  • Výroba na mieru
  • Kontakt
  • O nás
  • Zámočnícka dielňa
  • Spolupráca
  • Obchodné podmienky
  • Ochrana osobných údajov
  • Zásady používania súborov cookies
Copyright © 2024 Faktory & DOMO GLASS s.r.o. | Made by AXIM
  • Menu
  • Categories
  • RÁMOVÉ DVERE
  • INTERIÉROVÉ PRIEČKY
  • Posuvné dvere
  • Otočné dvere
  • Pivotové dvere
  • Deliace steny
  • Obľúbené dizajny
  • Výroba na mieru
  • Kontakt
  • O nás
  • Zámočnícka dielňa
  • Spolupráca
  • Wishlist
  • Login / Register
Shopping cart
Close
Sign in
Close

Lost your password?

No account yet?

Create an Account
Start typing to see products you are looking for.
Spravujte súhlas so súbormi cookie
Na poskytovanie tých najlepších skúseností používame technológie, ako sú súbory cookie na ukladanie a/alebo prístup k informáciám o zariadení. Súhlas s týmito technológiami nám umožní spracovávať údaje, ako je správanie pri prehliadaní alebo jedinečné ID na tejto stránke. Nesúhlas alebo odvolanie súhlasu môže nepriaznivo ovplyvniť určité vlastnosti a funkcie.
Funkčné Vždy aktívny
Technické uloženie alebo prístup sú nevyhnutne potrebné na legitímny účel umožnenia použitia konkrétnej služby, ktorú si účastník alebo používateľ výslovne vyžiadal, alebo na jediný účel vykonania prenosu komunikácie cez elektronickú komunikačnú sieť.
Predvoľby
Technické uloženie alebo prístup je potrebný na legitímny účel ukladania preferencií, ktoré si účastník alebo používateľ nepožaduje.
Štatistiky
Technické úložisko alebo prístup, ktorý sa používa výlučne na štatistické účely. Technické úložisko alebo prístup, ktorý sa používa výlučne na anonymné štatistické účely. Bez predvolania, dobrovoľného plnenia zo strany vášho poskytovateľa internetových služieb alebo dodatočných záznamov od tretej strany, informácie uložené alebo získané len na tento účel sa zvyčajne nedajú použiť na vašu identifikáciu.
Marketing
Technické úložisko alebo prístup sú potrebné na vytvorenie používateľských profilov na odosielanie reklamy alebo sledovanie používateľa na webovej stránke alebo na viacerých webových stránkach na podobné marketingové účely.
Spravovať možnosti Správa služieb Manage {vendor_count} vendors Prečítajte si viac o týchto účeloch
Zobraziť predvoľby
{title} {title} {title}
Výroba na mieru
Obľúbené dizajny